tuyenphuc wrote:
@ Bạn ghi kích thước amp 4500 = 4,5 mét, lớn bằng cái xe tải.
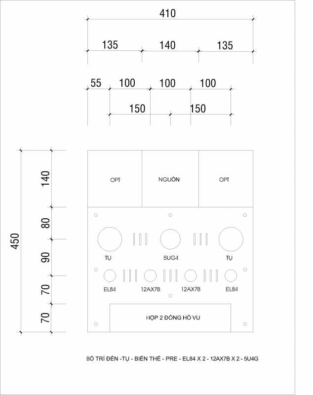
@ Chassis amp thiếu 2 bóng pre, nhưng lại dư 2 KT88, trừ khi bạn muốn ráp amp 4 đèn CS. Bố trí kiểu này đẹp nhưng khó ráp. Chia ra, 1 bên là 2-4 KT88, 1 bên là 2 bóng 12Axx + GZ34 + tụ (nếu chật có thể đem xuống dưới), kg làm đối chiếu như hình vẽ.
@ Nếu kg có GZ34, thì xài 2 x 5U4 cũng được.
@ Pre vẫn làm VU được. Thêm 2 EL84 hơi bị phí. Bạn nên dành chỗ cho 2 bóng nữa làm mạch phono, về sau sẽ có nhu cầu đĩa nhựa. Nếu sang có thể đổi 12Axx thành 6Sx7, gồ ghề, hay hơn nhưng cũng mắc tiền hơn.
@ Thùng loa hơi bị lớn so với kích cỡ loa, sẽ bị kêu thùng nhiều hơn kêu loa. Nhớ chuẩn bị mút nhét cho đầy thùng. Có thể làm vách ngăn giữa trên và dưới, như thể nó là 2 loa riêng biệt, đỡ bị cộng hưởng chéo. Cân chỉnh lỗ thoát hơi (port) cũng là 1 nghệ thuật. Chất lượng tùy loại loa và bộ crossover.
- Lúc vẽ em kg để ý nên nhầm.

- Như vậy cục mono còn thiếu 2 bóng 12axx em sẽ bố trí lại.Em dùng luôn đèn 12ax7b
- Em sẽ lắp 2 bóng 5u4g thay cho 1 bóng gz34
- Em lắp mỗi cục mono 4 đèn kt88. Em đã mua OPT 120w cho mỗi cục rồi
- Bác cho em tên 2 đèn làm phono, thông số tụ to cục mono và pre để em khắc thông số lên mặt hộp luôn.(em muốn lắp tụ trên mặt)
- Loa em DIY theo đúng thông số và kích thước của hãng. (Từng chi tiết nhỏ nhất về hình thức em cũng DIY theo hãng. Trừ những củ loa nếu mua như hãng thì khoảng 1,5 tỉ

), tất cả các loa đều có vách ngăn trong thùng, thành và vách ngăn loa dầy 36mm, mỗi thùng loa khi em làm xong nặng cỡ 150kg/thùng. Em loay hoay gần 3 tháng rồi bác ạ.
- Những cục nguồn, OPT,Choke em mua như vậy là được rồi phải không bác?
Em cảm ơn và chờ thông tin của anh.